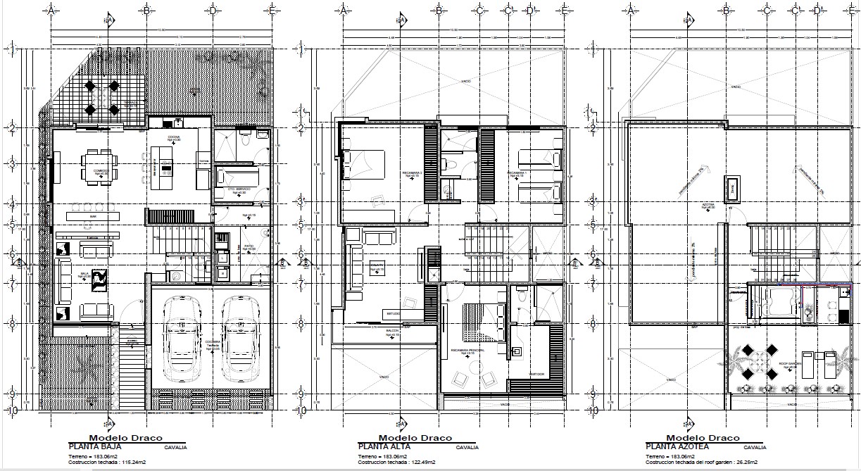
Ejercicio 9: Cálculo de Areas

Calcula las superficies de construcción, habitacional y accesoria de este proyecto con los criterios de Catastro












8. Verifica si se guardó correctamente en la carpeta de tareas